
3
3
5
242.8 m2
12 Pilti
IDESTATE kinnisvaral on hea meel pakkuda uut müügile tulevat eramut, koos abihoonega, Viimsis, Leppneeme asumis.
Müüdavale kinnistule on planeeritud kaks ühetaspinnalist maja - eramu ning abi- või saunahoone.
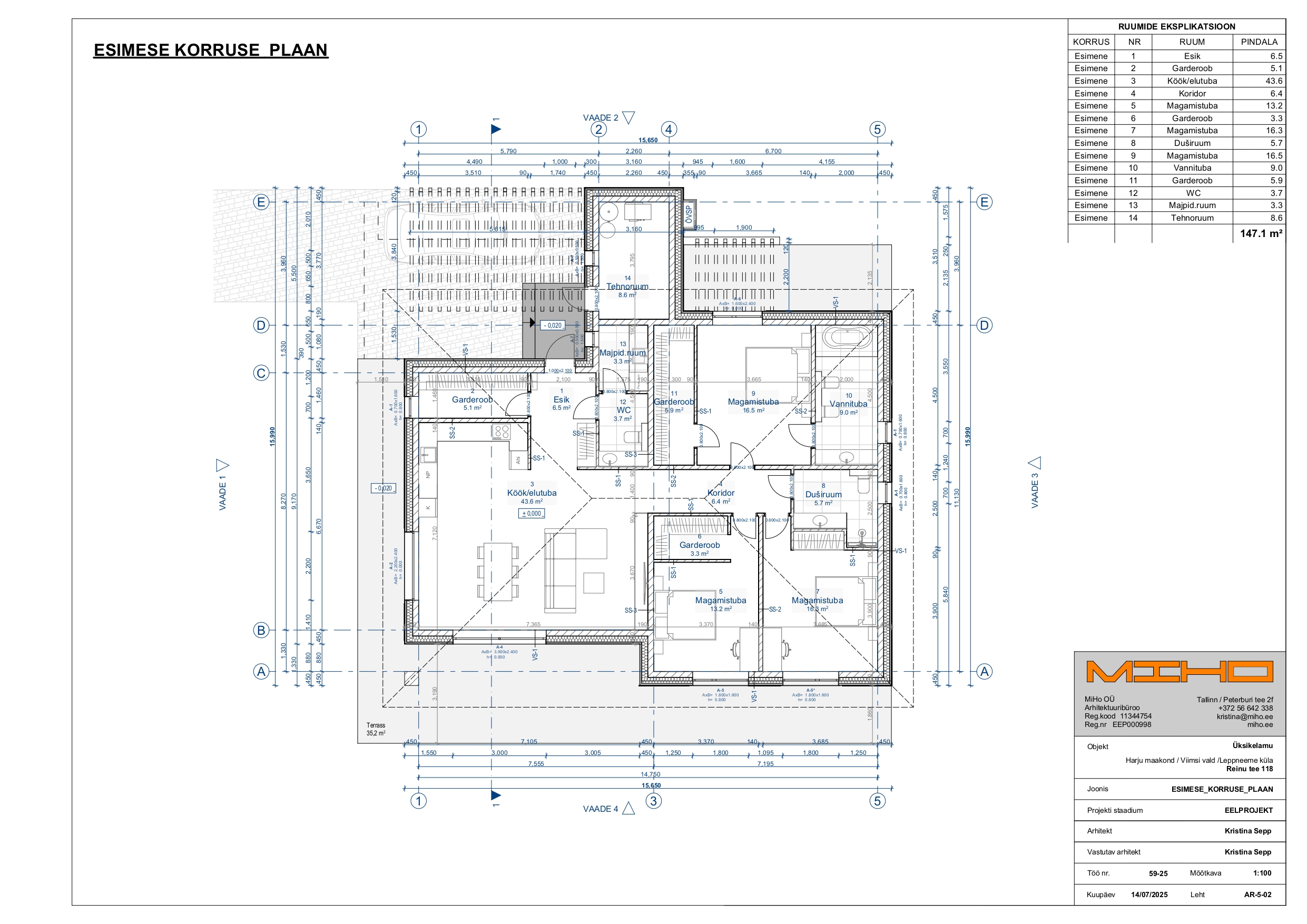
Planeeritava eramu ja abihoone planeering:
Maja suletud netopind on 147,1m², millele lisandub terrass 51,3m² ja autovarjualune.
Maja koosseisu on planeeritud - suur (üle 40m²) elutuba, kus ka avatud köögiosa. Elutoast on pääs maja ümbritsevale terrassile.
Lisaks on eramusse planeeritud kolm avarat magamistuba. Suurimal nn peamagamistoal on omaette garderoob ja vannituba ning sealt on pääs avarale terrassile (16.1m²).
Lisaks on majja planeeritud veel esik; garderoob; majapidamisruum ja nn külaliste wc; eraldi dušširuum ning tehnoruum.
Abihoonesse (29,7m²) on planeeritud saunkompleks koos suure puhkeruumi osaga, kus on ideaalne korraldada saunaõhtuid ja võõrustada külalisi. Lisaks on abihoonel ka terrass (14,7m²), kus võimalik peale sauna värsket õhku hingata ja kuulata linnulaulu.
Ehitatav maja on planeeritud energiasäästlikuks ja seda kütab õhk–vesi küttesüsteem, mis baseerub kogu majas oleval vesipõrandaküttel.
Igas ruumis on võimalik eraldi reguleerida toatemperatuuri.
Samuti on ehitatavasse majja planeeritud soojustagastusega sundventilatsioon, mis tagab värske õhu ja stabiilse sisekliima.
Tegemist on kvaliteetse kivimajaga, mille planeeringu ja siseviimistluse osas on hetkel võimalik veel uuel omanikul kaasa rääkida.
Väga privaatne asukoht, ümberringi mets ja looduskaitseala.
Tõsisema huvi korral saame jagada täpsemat infot maja tehinilise ja ehitusliku poole osas ja ajalise kava kohta.
Müügihinnas sisaldub ehitaja poolne köögimööbel ja tehnika (Bosch).
Samuti on müüginnas käibemaks.
Teeme teile ühe hea ja kvaliteetse eramu.
Kuulutuses olevad pildid on illustratiivsed ning võivad erineda tegelikkusest.